暨阳社区

标题: 【锦华装饰】112平现代极简风格,独立女设计师的自由空间 [打印本页]

作者: 江阴·锦华装饰    时间: 2023-2-26 17:21
标题: 【锦华装饰】112平现代极简风格,独立女设计师的自由空间
案例信息:
项目风格 | 现代极简
项目面积 | 112㎡
项目户型 | 两室两厅
案例来源 | 锦华装饰

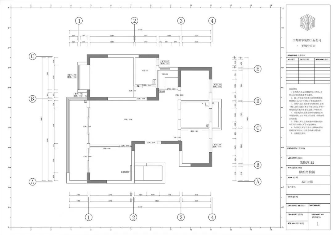
原户型优点:
①户型方正,南北通透;
②坐拥南北双阳台。

原户型不足:
①南向次卧,空间略显局促;
②北向客卧、功能房间,空间略显局促。

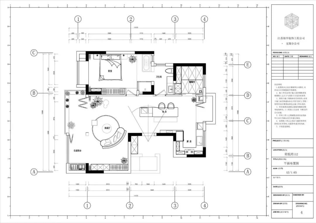
户型改造亮点:

①打通南向次卧与客厅,扩充主体空间;
②南向阳台分隔为花房区与家政区;
③打通北向客卧、厨房,最大化利用空间;

④打通主卧与客卫,将“主卫”区域变更为更纯粹的“沐浴区”;原“客卫”区域则设置有坐便区、洗漱区。

01.

客厅


客厅与南向次卧打通,使得主体空间得到进一步拉伸,采光也愈发通透。

客厅清爽温馨,吊顶无主灯设计、鱼骨拼地板,拉伸视觉空间,墙面白色基调如沐浴在云般温柔,搭配跳色衣柜、室内绿植,让空间多了活跃感与层次感。

米白色弧形沙发像怀抱一样温柔舒适,在其中肆意舒展身体。黑白格豆腐块沙发带来不一样的复古精致。

02.

餐厅.


开放式设计,让餐厅与客厅形成了一体化的空间结构,一步随时切换生活功能场景。

餐桌与中岛台的结合,在提供部分西厨功能的同时,还提升了空间功能性。亚克力悬浮桌面,相较岩板设计在视觉上更加轻盈,更贴合女性生活习惯。既有一人就餐的仪式感,也有朋友小聚的欢乐氛围,偶尔还能作为办公桌来使用。

03.

厨房.


厨房采取“L型”设计,动线合理,利用了每一寸空间。墙壁储物柜有效规避了物品堆砌导致的杂乱,为美食烹饪提供了清爽干净的操作空间。嵌入式双开冰箱,与厨房完美融为一体。

04.

洗手间.


卫生间选用了爵士白大理石进行铺贴,主卫与客卫打通后,大幅扩充了“沐浴区”的空间,沉浸式泡澡、畅快淋浴任意体验,尽享独居美好。

“洗漱区”高级悬空式洗手台橙色柜身,搭配纯白色边框化妆镜、全身镜,提升视觉明亮,回应女性期盼的透亮的梳洗空间。


05.

卧室.



主卧延续空间的简约风格,灰色背景墙与原木色地板的碰撞,知性高贵中不乏温馨恬静,走进房间仿佛就能摒弃所有繁杂琐事。





欢迎光临 暨阳社区 (http://bbs.jysq.net/) 暨阳社区 - 江阴论坛 - 网络改变江阴
(打印:@2025-12-10 05:38)