暨阳社区

标题: 【纬度空间装饰】:泰和江南——设计属于自己的空间 [打印本页]

作者: 纬度空间装饰    时间: 2023-3-18 20:13
标题: 【纬度空间装饰】:泰和江南——设计属于自己的空间
家,承载了我们所有生活的记忆,有一日三餐,有春夏秋冬,有财米油盐。

作者: 纬度空间装饰    时间: 2023-3-18 20:15
明亮温馨的氛围更适合居家生活。

作者: 纬度空间装饰    时间: 2023-3-18 20:25
客厅简约宽敞,顶面采用当下流行无主灯设计,墙面使用白色让视觉空间放大。白色,木色与浅灰色的结合和谐细腻,整体空间实现了颜值功能双丰收。

作者: 纬度空间装饰    时间: 2023-3-18 20:27
抹茶绿的墙面仿佛有种与世无争的安静与浪漫,让我们每天的坏心情都会在睡前清零。

作者: 纬度空间装饰    时间: 2023-3-18 20:35
洗漱之后躺在床上玩玩手机,微黄的光亮提供着闲暇静谧,这个时候,一间卧室就是一个完整的内心世界。

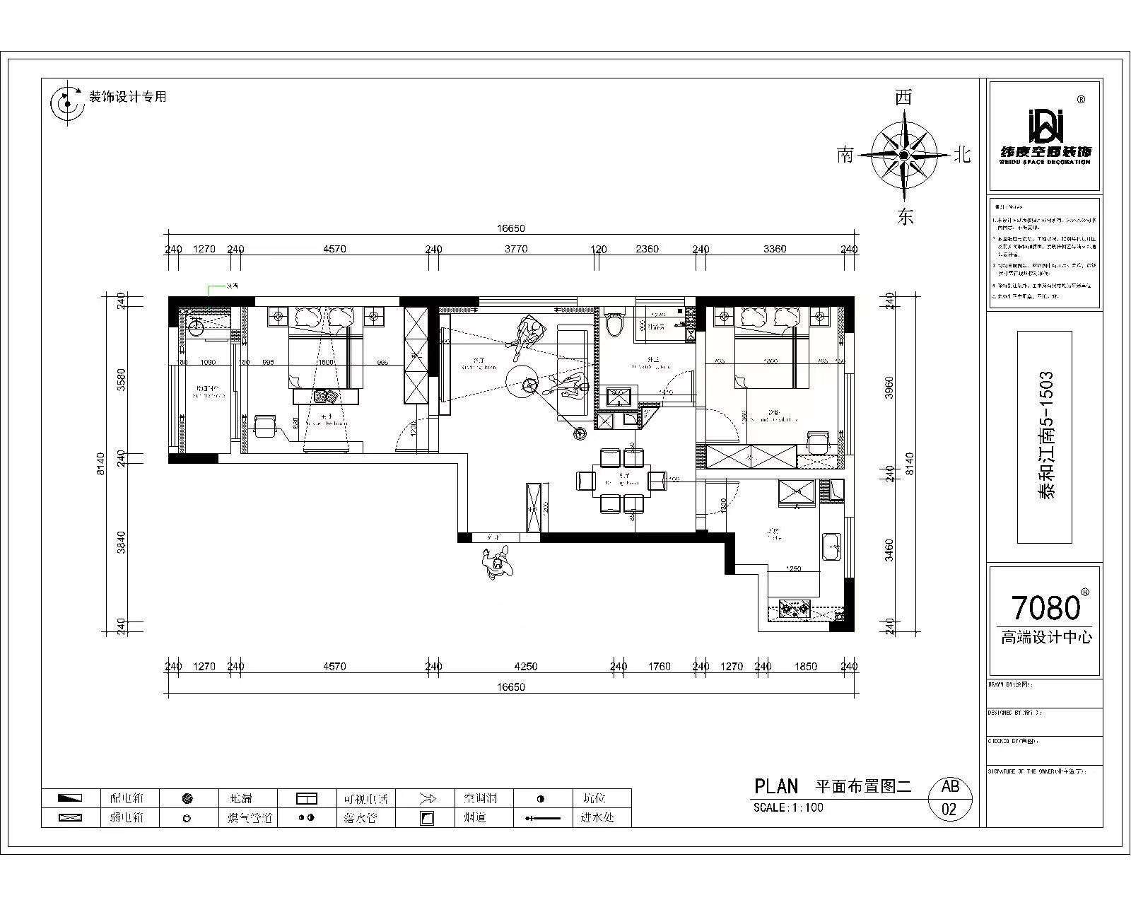
作者: 纬度空间装饰    时间: 2023-3-18 20:39
奉上平面设计图。

作者: 纬度空间装饰    时间: 2023-3-20 18:44
泰和江南二期开发商配的是恒温恒湿恒氧的三恒系统。地面下因铺有新风管道,进场拆除前进行一次地面找坪。



作者: 纬度空间装饰    时间: 2023-3-20 18:47

[video=http://magpic.jysq.net/pic/20230320/1679309236711377_919.jpg]http://magpic.jysq.net/video/20230320/167930923344988_64.mp4[/video]
作者: 纬度空间装饰    时间: 2023-3-22 16:03
搞莫子 发表于 2023-03-21 18:30
你好 本厂承接帮装潢公司全包单 下单 所以产品成本价  只收一个服务费 有兴趣联系我

好的,有机会会联系你。
作者: 纬度空间装饰    时间: 2023-3-31 15:09
厨房两扇窗户打开时会碰到水槽龙头。方法两个:换成平推窗或者碰倒龙头的那一扇窗户不要打开。

作者: 纬度空间装饰    时间: 2023-3-31 18:46
水电进场施工,材料水管日丰,电线远东。









作者: 纬度空间装饰    时间: 2023-4-8 18:30
水电结束,等待业主验收。






作者: 风听荷语    时间: 2023-4-10 13:46
灵个。。。
作者: 纬度空间装饰    时间: 2023-4-14 06:48
空调安装,三恒系统毛细管铺设施工。









作者: 纬度空间装饰    时间: 2023-4-26 08:38
木工施工中。木工材料:兔宝宝欧松板,可耐福石膏板,国际三龙轻钢龙骨。









作者: 纬度空间装饰    时间: 2023-5-3 16:45
五一假期要结束了,明天恢复正常施工。









作者: 纬度空间装饰    时间: 2023-5-20 08:10










作者: 纬度空间装饰    时间: 2023-5-26 09:47
入户门装好,业主很喜欢。


作者: 纬度空间装饰    时间: 2023-6-2 21:13
面子工程油漆施工前奏曲—材料进场。





作者: 纬度空间装饰    时间: 2023-6-14 13:27
油漆施工。






作者: 纬度空间装饰    时间: 2023-6-21 10:58
油漆施工中。





作者: 纬度空间装饰    时间: 2023-6-29 12:42
油漆结束,准备主材进场了。






作者: 纬度空间装饰    时间: 2023-7-28 10:59
主材进场了。




作者: 纬度空间装饰    时间: 2023-7-30 10:19
装修看细节,油漆活是整个装修过程的面子工程。






作者: 纬度空间装饰    时间: 2023-8-9 14:08




作者: 纬度空间装饰    时间: 2023-8-9 14:09



作者: 纬度空间装饰    时间: 2023-8-14 12:39







作者: 纬度空间装饰    时间: 2023-8-17 15:01
保洁









作者: 纬度空间装饰    时间: 2023-9-1 10:58




作者: 纬度空间装饰    时间: 2023-9-15 09:07
毕业视频。
[video=http://magpic.jysq.net/pic/20230915/1694740037144996_150.jpg]http://magpic.jysq.net/video/20230915/1694740026816892_852.mp4[/video]
作者: 纬度空间装饰    时间: 2023-10-26 10:56
您好,我是纬度空间装饰,江阴本土装潢公司,专业设计,施工严谨性价比高,具体咨询可以添加微信号15961613503细聊。
作者: 琼瑶女郎    时间: 2023-10-26 16:57
77
作者: 纬度空间装饰    时间: 2023-12-22 13:41
纬度空间装饰,江阴本土装潢公司,专业设计,施工严谨性价比高,具体咨询可以添加微信号15961613503细聊。




欢迎光临 暨阳社区 (http://bbs.jysq.net/) 暨阳社区 - 江阴论坛 - 网络改变江阴
(打印:@2026-3-11 00:17)