
13771269845 发表于 2023-05-03 21:09
这价格高了呀,看来楼主有钱
laoniulaoniu 发表于 2023-05-04 19:20
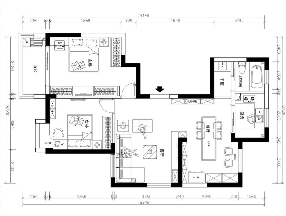
也不说面积,也不说吊顶啥的,看不出价格高低。
餐桌换个方向,能不能隔个小书房出来。
你这种装法,30应该不够。

小王 发表于 2023-05-06 13:14
30万差不多,换个大门(0.6万)、换个系统窗(2万),普通空调(2万)新风地暖(2.5万)。全屋橱柜定制(5万),厨房家电(2万),普通家具(2万),半包(7万),普通装货材料(5万)
| 欢迎光临 暨阳社区 (http://bbs.jysq.net/) |
暨阳社区 - 江阴论坛 - 网络改变江阴 (打印:@2026-3-11 01:59) |